龙湖X筑详设计 | 诗意联结 水漾星图
时间:2019-05-28 来源:筑详设计 浏览量:
与自然&艺术相连的摩登商务生活
上海龙湖·星图美学展示中心

让微妙的自然湖泊与现代艺术元素在设计中形成关联与对话。运用坐拥的湖境的资源,将美学示范区打造成新摩登艺术的社交商务场域,探索未来生活美学的未来,为上海的摩登商务生活开启与自然相连的可能性。



美学示范区分布在一、三层与四层,设计主题围绕商务精英的生活展开,一楼景观连廊营造与自然相连的场景体验,远可观湖近处可感受艺术与自然的交融,以水为主题的现代艺术自由的生长在一楼至三楼的半围合与围合空间内,营造多处情理之中意料之外的体验惊喜,中下部光环境与自然光的融洽,营造出静谧低奢的体验氛围。



在三楼展示与洽谈空间的设计中设计师通过提炼虚与实的“屋”形盒子完成错落有致的空间功能与动线的划分,并蓄意设定室内不同区域的高低变化,以此来确保在各个空间的人都能找到完美的观湖视角,让湖景价值得以最有效的开发,将自然与空间诗意连接,旨在激发打开客群的体验感知系统,唤醒客群对未来生活的畅想。



沙盘展示区与洽谈区在湖景视角充分开发的基础上,克制所有的造型与材质表达,强化建筑及空间本身的结构美感,利用提炼与水的灯具装置强化主视觉关注点,突出艺术的张力与空间的律动灵性。



空间与材质精致的界面设计有意调节室内明暗区域,精准的的考量反射光线,利用不同镜面与物体的反射,自然光线被节制地有效掌控。金属板,皮质硬包,间接光照,精致线光源、当代艺术雕塑,所有的精致细节共同指向艺术摩登的未来感,让来源于自然的抽象艺术与人产生精神层面的感知共鸣。



共享办公区域引入联合商务办公模式,创新展陈布局,用金属和光线打造的线性解构线条,勾勒出与沙盘展示区呼应的“屋”形盒子虚体造型,借用自然光,围合出通透的界限,营造空灵低奢、科技精致的视觉美感。体察室内,放眼湖境,触发灵魂的共鸣,构建与湖境相连的理想的摩登商务之境。

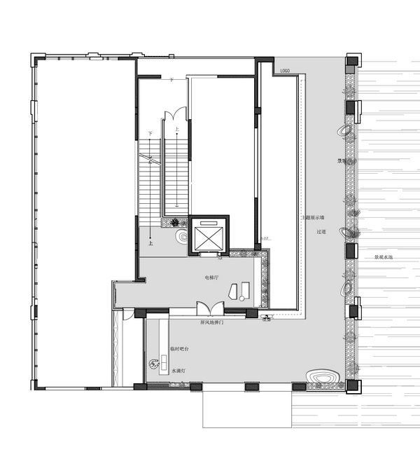
一楼平面布置图

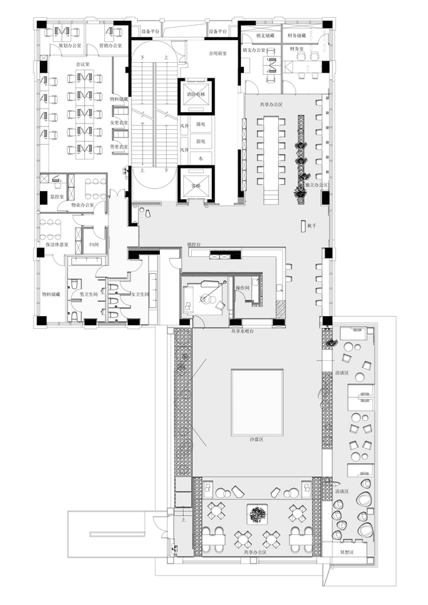
三楼平面布置图

项目名称:上海龙湖·星图美学展示中心
项目地点:上海松江区
业主单位:龙湖·上海地产
设计面积: 750㎡
甲方管理团队:张凌云 张晓英
设计单位:筑详设计机构
软装单位:上海桂睿诗建筑设计咨询有限公司
项目摄影: 耿旭姗 张大齐
项目灯光:SCL照明设计
设计时间:2018.8
开放时间:2019.3
主要材料:菲格姆石材、香槟色不锈钢、灰色水磨石、金属屏风、渐变进口玻璃PU贴膜

专职为地产商、商业投资客户及私人客户提供全方位的室内外设计服务的设计机构,致力于中国未来生活方向的设计研究。
筑详设计机构成立于2008年,郑州、上海、香港均有注册,专职为地产商、商业投资客户及私人客户提供室内外一体化的设计解决方案,我们致力于空间价值的研究,通过设计带来更多的附加值,达到设计价值的最大化。我们自豪于对设计的创新能力和满足不断变化的市场需求的能力。机构连续多年荣获众多国际、国内各类设计大奖。下属有“筑.简”原创陈设设计品牌,注重原创设计产品的开发及研究,并拥有多个合作代理的国际陈设品牌。
关于设计师

刘 丽,高级室内建筑师,筑详设计机构创始人&创作总监,致力于地产类建筑空间设计与未来生活方向的设计研究。
近期荣誉
2018 国际设计传媒奖年度精英设计师
2018 德国iFDESIGN AWARD 设计大奖
2017-2018美国室内杂志中文版年度封面人物提名
2017 意大利A'DesignAward&Competition银奖
2017 意大利A'DesignAward&Competition铜奖
2017 CIID 中国室内设计大赛商业类铜奖
2017 CIID 中国室内设计大赛商业类优秀奖
2017 CIID 中国室内设计大赛商业类优秀奖
2017 CIID 中国室内设计大赛住宅类优秀奖
2017 台湾六艺奖公共空间年度十佳奖
2017 台湾六艺奖展示空间年度提名奖
2017 台湾六艺奖样板间空间年度提名奖
2017 现代装饰国际传媒奖展示空间设计大奖
2017 作品入选DINZ德国室内设计
2016 现代装饰国际传媒年度样板间空间大奖
2016 IDEA-TOPS艾特奖国际空间设计大奖
2016 SIDA新加坡国际空间设计大奖
2016 IEED国际生态设计联盟年十大杰出设计师
2016 录制央视空间榜样栏目组榜样作品
2016 作品入选DINZ德国室内设计
2016 作品收录IDEA-TOPS艾特奖国际空间设计年鉴
2015 入选美国室内杂志中文版
2014 中国室内设计大奖赛餐饮工程类优秀奖
2014 中国室内设计大奖赛休闲娱乐工程类优秀奖
2014 中国照明应用设计大赛银奖
2012 现代装饰国际传媒年度商业空间大奖
2012 CIID 年中国室内设计大奖赛商业类银奖
作品多次入选《ID+C》《现代装饰》等国内一线专业媒体